徐汇滨江上新!联动价14.2万!【中海西岸项目】更多细节披露!
扫描到手机,新闻随时看
扫一扫,用手机看文章
更加方便分享给朋友
徐汇滨江综合体【中海西岸项目】将推出户型面积段(建面约100㎡、建面约145㎡、建面约180㎡、建面约200㎡和建面约270㎡,预计总价在1500-3000万)!
在西岸数智中心,在低区建筑布局中引入了东方式“游园”概念,让公共空间和景观融合,通过空间序列布局和环境心理营造,让人们惬意游赏生活的每个场景,感受自然与东方栖居意韵,为社区注入一种“高级的松弛感”。

“游园”空间注重情绪价值。东方园林氛围底蕴提升空间的文化内涵、与价值认同,营造亲切、宁静、放松的环境,增强人们与空间的互动和情感联系。

立面方面:设计致敬海派的经典构图,回应西岸国际创意产业集群,强调建筑的未来感,以科技感的宽景立面、圆润的细部和精工工艺,以流畅自然的形体营造兼容并蓄、适度怀旧的摩登感。
以铜质的翼板和环抱的半圆线条形成融贯东西的戏剧性视觉。水平向出挑的翼板也在尽头的折边处也采用了小倒角的弧形,抽象演绎了传统东方的檐部细节;竖向环抱的圆弧线条则是在抽象演绎传统东方瓦当的形制。

西岸数智中心总占地面积约46.23万平方米,共包括8幅地块,总开发建设体量达107万平方米,直线距离黄浦江约1.5公里,链接徐汇滨江及地铁23号线等城市资源。其中,198-A-03、198-A-04、188N-F-04、188N-F-05、188N-U-04、198-C-026个地块由中海地产及西岸联合体进行开发。

面对这块具有非凡价值的地块,中海地产与西岸联合体将自身开发优势与区域发展规划巧妙结合,将推动本片区成为上海人工智能产业集聚标杆,通过与周边功能组团的有效联动,构建一个产、城、人融合为一体的西岸数智中心。
这里将建成涵盖办公、商场、高端住宅、长租公寓复合型业态的综合体项目,与毗邻的西岸数字谷、西岸传媒港联合打造“产业黄金三角”。同时,这里将依托西岸自身的全业态打造能力,建设上海人工智能产业集聚标杆。
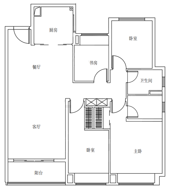
户型图(仅供参考,以实际交付为准)
100㎡3房2卫



来源:楼市独家
声明:本文由入驻焦点开放平台的作者撰写,除焦点官方账号外,观点仅代表作者本人,不代表焦点立场。


