断供多年的莘庄,将迎来两大神盘入市!最新户型抢先看!
扫描到手机,新闻随时看
扫一扫,用手机看文章
更加方便分享给朋友
今年4月21日,上海2023首轮土拍,闵行莘庄两幅“抢手”宅地竞拍空前激烈。13A-10A、13A-13A地块共吸引28家竞买人,最后被保利建工联合体拿下;16A-07A地块共吸引33家房企参与竞拍,最终被中华企业拿下。
两幅地块位于莘庄商务区核心位置,也是商务区内唯一的商品住宅用地。两者相距仅约500米,配套共享,房地联动价均为80000元/㎡,要求装修单价应不低于3000元/㎡。
莘庄商务区以发展现代服务业为主导,集商务办公、会议论坛、科技研发、总部基地、商业休闲、文化交流等多元功能为一体,形成立足上海,辐射江浙,接轨国际的智慧型、生态型、国际化商务中心区。
交通方面,两个项目靠近轨道交通12号线七莘路站,同时嘉闵线在建,未来可实现双轨换乘。自驾的话,项目临近嘉闵高架、外环高速等主干道,可快速直达徐家汇、漕河泾、虹桥商务区等核心板块。
商业方面,周边莘庄维璟印象城、万科七宝国际、华君广场、港澳购物中心等环绕,可满足日常需求。
教育方面,13A-13A地块西侧规划有一所10班幼儿园,周边还有闵行区莘庄第三幼儿园、闵行区莘松小学、闵行区教育学院附属中学等全龄教育覆盖。(具体对口学校以教育局公示为准)
如今,两个新项目都公示了规划方案和户型,预计今年四季度就会面世。其中,保利建工海玥锦上将推出249套建面约99-129㎡3-4房;中企莘庄项目将推出388套建面约99-124㎡3-4房。
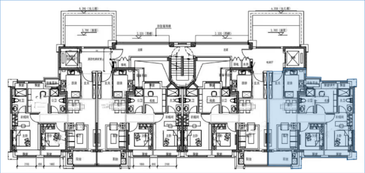
保利建工海玥锦上
根据规划设计方案,保利建工海玥锦上总计容27211.55㎡,容积率2.1,1#、2#、7#为住宅建筑,其中1#、7#为商品房,共26层;2#为8F公租房住宅。只有两栋可售住宅,体量迷你。




户型方面,项目将推出约99-129㎡3-4房,249套一次性全推,计划四季度入市。
项目还包含有200㎡老年活动室、130㎡居委会、200㎡卫生服务站等设施。
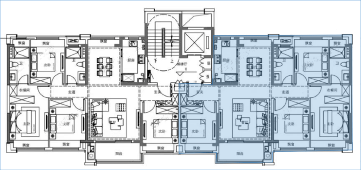
中企莘庄项目
根据设计方案显示,中企莘庄项目拟建2栋10F小高层、5栋17-18F高层、1栋8F保障房以及若干配套用房,可售套数约388套。
项目主力户型为建面约100㎡3房,2梯4户带连廊。其中3#、1#为大户型,约40套。


作为城市副中心,莘庄在上海西南一直是老大哥的地位,也是置业的明星板块,多年来却没有土地供应。板块内上一次土拍,要追溯至2015年金辉地产拿下的“地王”——金辉海上铭著。此后,莘庄宅地就几乎绝迹于江湖。在TODTOWN天荟和金辉海上铭著之后,莘庄新房已断供多年。
目前莘庄二手房价格接近10万/㎡,保利建工海玥锦上、中企莘庄项目8万/㎡的房地联动价,存在一定的倒挂优势。作为板块内的稀缺供应,两大重磅项目的入市,将填补莘庄长久的供应空白,值得期待!
声明:本文由入驻焦点开放平台的作者撰写,除焦点官方账号外,观点仅代表作者本人,不代表焦点立场。


