「华发古美华府」第一批次已过会,建面约107-145㎡3-4房,均价8.25万/㎡
扫描到手机,新闻随时看
扫一扫,用手机看文章
更加方便分享给朋友
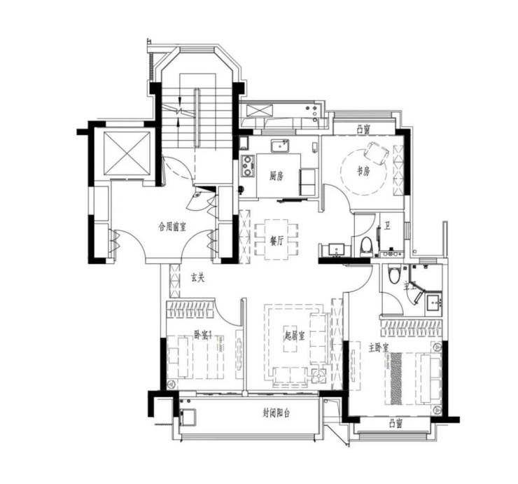
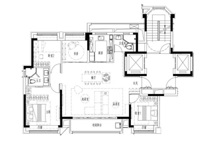
户型图如下:(过程稿仅供参考,最终以开发商发布为准)
2022年6月,上海第二批次土拍中,华发以总价约29亿元,竞得闵行区七宝镇古美北社区S110501单元19-01、20-01地块,地块出让面积28689.4㎡,容积率2,溢价率8.6%,成交楼板价50653元/㎡,房地联动价82500元/㎡。
和该地块同期拍地的还有华发&建发的18-01、22-01地块,两幅项目地块均位于闵行七宝原九星市场,房地联动价均为82500元/㎡,往南约400米就是融信旭辉世纪古美。
项目地块东至虹莘路,南至星友路,西至星东路,北至宝兰路,位于古美华庭的东侧。地块出让要求“中小套户型不得低于总住宅建筑面积的80%”

根据设计方案显示,项目容积率为2.0,拟建7栋14-16F高层住宅、1栋保障房以及配套用房,可售商品房约523套!
规划方案如下:

声明:本文由入驻焦点开放平台的作者撰写,除焦点官方账号外,观点仅代表作者本人,不代表焦点立场。


