大虹桥又有纯新盘!招商路劲象屿项目1000+套房户型曝光!
血拼上海楼市 2022-03-15 11:22:33
用手机看
扫描到手机,新闻随时看
扫一扫,用手机看文章
更加方便分享给朋友
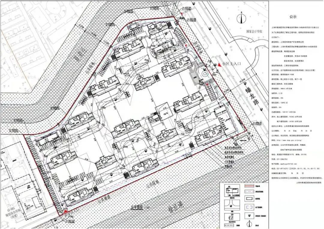
万众瞩目的大虹桥又将有新盘供应了!近日,招商路劲象屿徐泾项目规划公示。
万众瞩目的大虹桥又将有新盘供应了!
近日,招商路劲象屿徐泾项目规划公示。该项目体量较大,拟建14幢17F高层住宅,至少提供1005套房源,80%都是中小户型。
招商路劲象屿徐泾项目规划
据爆料,招商路劲象屿徐泾项目主力户型有建面约81㎡2房、约92㎡3房、约104㎡3房、约162㎡4房。
网传户型图如下
(具体以开发商公示为准)
2021年10月12日,上海第二批集中土拍中,招商路劲象屿联合体以总价63.95亿竞得青浦区西虹桥沪青平公路北侧48-06A地块,溢价率9.85%,成交楼板价37569元/㎡,房地联动价60000元/㎡。

该项目距离17号线蟠龙路地铁站约2公里,北侧约1.5公里就是去年大虹桥的“顶流盘”虹桥悦澜,前期均价61300元/㎡。
声明:本文由入驻焦点开放平台的作者撰写,除焦点官方账号外,观点仅代表作者本人,不代表焦点立场。


