南北通+独立电梯厅+飞机户型,【绿发黄浦滨江项目】全套户型图流出
扫描到手机,新闻随时看
扫一扫,用手机看文章
更加方便分享给朋友
黄浦滨江板块,绿发黄浦滨江项目预计三季度入市!这个项目是23年4月份由中国绿发(鲁能)协议拿地,所以暂时没有联动价。
虽然说项目之前也发布了设计方案,但是和现在项目高周转的节奏不太一样,这个项目隔了1年多,才传来入市消息(预计今年3季度入市)。
项目位于黄浦滨江,和近期入市的保利世博天悦差不多一江之隔,且项目贴着内环高架,项目距离融创外滩壹号院和保利世博天悦直线距离均约800米+,2个项目均价都是16.8万/㎡,未来绿化黄浦滨江项目的价格,或可以参考一二。
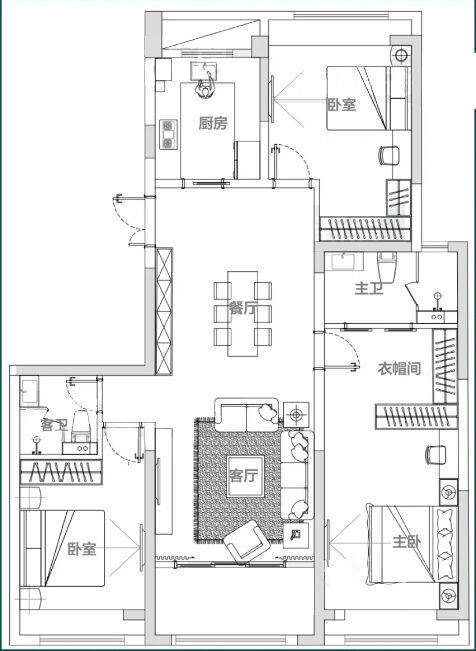
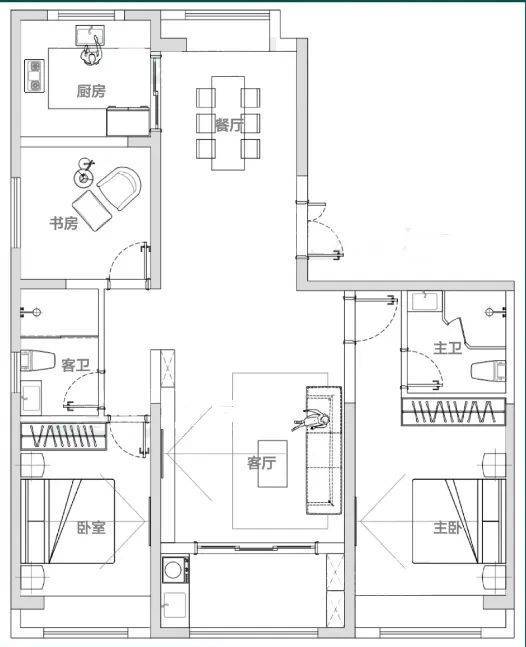
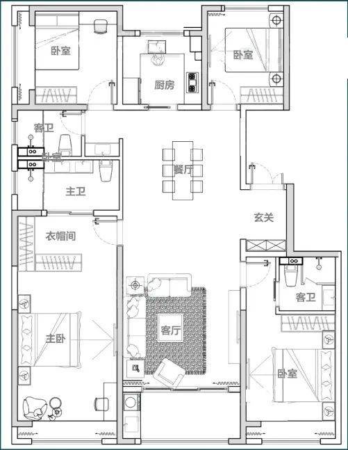
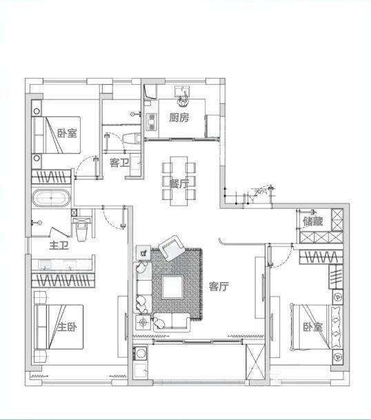
另外,项目将推143-195㎡3-4房,最新的户型图如下:
可以看到,户型最小也是143㎡起,也就是说未来的门槛至少在2000w+,并且这些户型均带有独立电梯厅,且都是飞机户型,横厅,南北通,168㎡更是3房/4房均可以选择!
项目最新的效果鸟瞰图:

声明:本文由入驻焦点开放平台的作者撰写,除焦点官方账号外,观点仅代表作者本人,不代表焦点立场。


