新作|望江驿:放大的风景 / 致正建筑
扫描到手机,新闻随时看
扫一扫,用手机看文章
更加方便分享给朋友

望江驿,致正建筑工作室
“望江驿”是上海浦江两岸贯通工程东岸陆家嘴北滨江段的一处服务驿站,为市民提供休憩空间和公共卫生间。驿站位于由临江的跑步道和内侧的骑行道所限定的狭长的堤状滨江绿地内,由一处现存的地下车库楼梯间出入口扩建而成。场地高于城市道路两米以上,且北面临江侧比南侧略高,周围经年成形乔木甚多,如同一片小树林。




为了平衡一个月的极短工期和对于完成品质、空间体验的较大诉求的矛盾,并兼顾施工场地局促,以及控制车库顶板上的结构重量等问题,设计采用了以胶合木结构为主的钢木混合体系来快速建造,工厂预制化率较高,现场基本为干作业施工,对环境影响很小。



驿站所在场地背靠陆家嘴连绵的摩天楼群,隔江与老外滩及北外滩对望,是上海市中心的一处关键性公共空间。这一微小的驿站,使得我们有机会探讨超越其自身尺度的建筑与风景的关系。我们希望驿站在以平易近人的氛围服务市民的同时,更能够强化这块场地自身的特性,从而让建筑有机会成为风景的放大器。“望江驿”这一命名正凸显了驿站的双重述求。
搭建过程

总平面

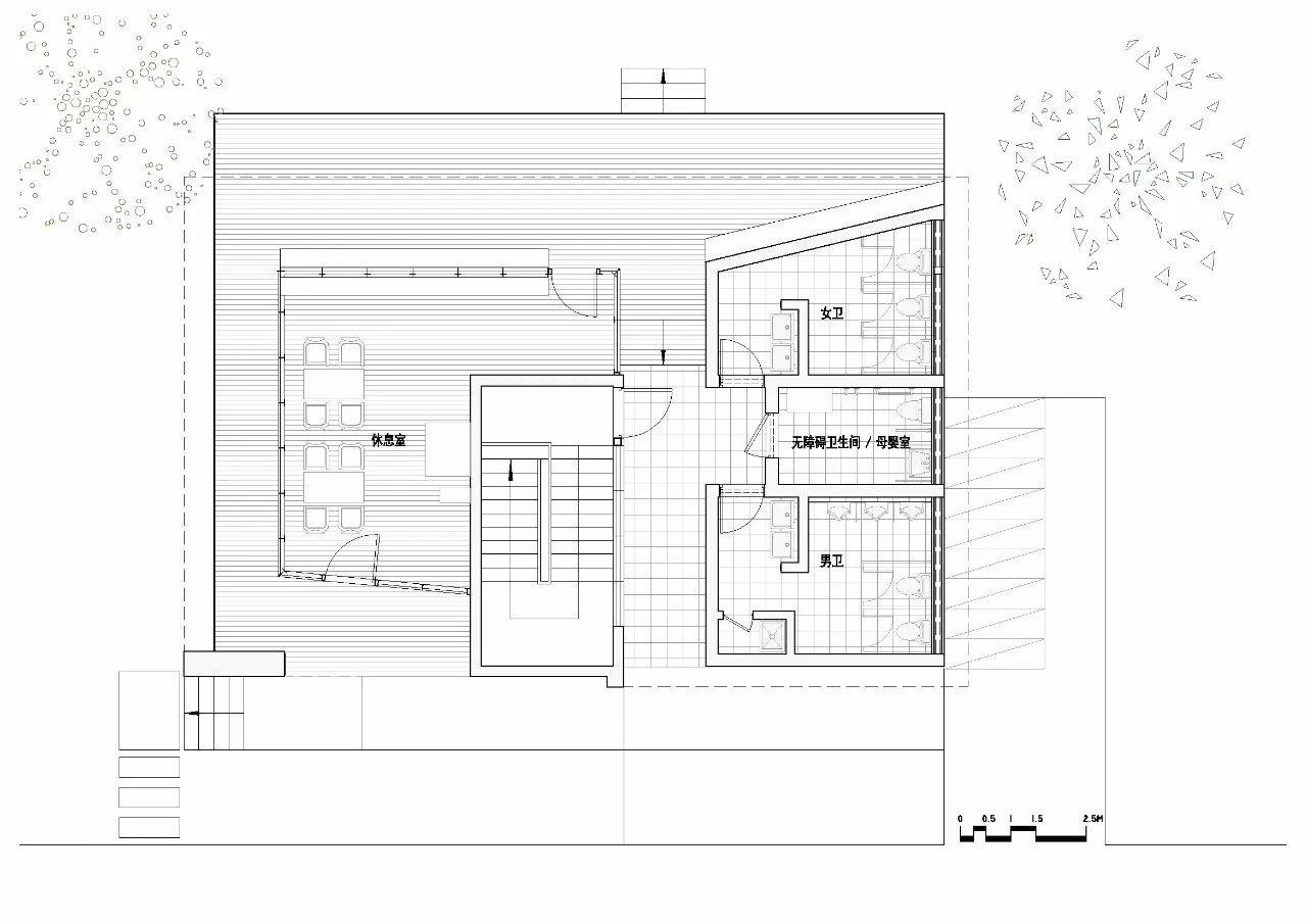
一层平面

北立面

西立面


贯穿南北的有顶通廊


休息室
驿站分为东西两个部分:东侧是相对封闭的公共卫生间;西侧是和车库楼梯间结合在一起的L形休息室,面向外滩的北、西两侧都是落地玻璃和休息平台,北侧的望江平台靠着驿站外墙设有长凳供市民小坐。这两部分之间是一条穿越建筑贯通南北的有顶通廊,连接南侧较低处的骑行道和北侧较高处的望江平台。驿站方正的平面轮廓和相对复杂的半螺旋直纹曲面单向檩条木结构仿铜铝镁锰板屋面形成了鲜明的对比。从临江侧看,驿站像是一个微微架空在场地上的出檐深远、屋顶轻盈起翘的大凉亭。


放射状布置的木檀条
整个北侧的反坡屋檐下呈伞状的放射形布置的木檩条成为视觉焦点;檩条汇聚处自然形成一个三角形的天窗,一半在休息室内,一半在通廊上,将幽暗的屋顶深处照亮,强化了空间的进深感。


南立面

南侧平台局部
南侧立面与道路


东侧檐下
从南侧骑行道看,驿站的屋顶被分为高低不同、但都向内倾斜的东西两半,特别在正中的西段楼梯间角部的屋顶被压到接近视平线的较低点,而且屋顶仿铜板延续到了西段的南侧立面上;这种特意压低的尺度和屋顶与立面的连续性加强了背江面的进入感,将人由居中的通廊引向江景。




人们由骑行道穿过狭小低矮的通廊拾级而上,屋顶在配合身体的运动渐次升高,原来通廊尽端外的密集树冠在视野中缓缓上升,冲破北侧高敞的屋檐;站在望江平台上豁然开朗,视线向下,透过底部的树干,江面在粼粼波光中水平向展开,与江边或散步或奔跑的人影共同构成流动的风景。




两侧身后廊下的长凳吸引人们安坐下来,悠闲地观赏江景。此时人们只能看见闪烁的江面,对岸的城市隐在树丛之后,有一种特别的宁静之感。当然,当人们走下平台,顺着树丛中的汀步蜿蜒下行,就是跑步道和亲水平台,在那里,浦江两岸的城市天际线一览无余。

剖透视

北立面

西立面

南立面

东立面

剖面图
项目档案
项目名称:望江驿
建筑师:周蔚 + 张斌 / 致正建筑工作室
主持建筑师:张斌、周蔚
项目建筑师:李姿娜
设计团队:刘晓宇、张吉昊、谢兆荣
合作设计:上海思卡福建筑工程有限公司
建设地点:上海浦东滨江大道、百步街
建设单位:上海陆家嘴(集团)有限公司
施工单位:上海舜杰建设(集团)有限公司
上海思卡福建筑工程有限公司
设计时间:2017.08.11 - 2017.08.29
建造时间:2017.08.25 - 2017.09.25.
占地面积:235平方米
建筑面积:130平方米
结构形式:钢木混合结构
建筑层数:地上1层
主要用途:休息室、公共卫生间
主要用材:花旗松胶合木、型钢、花旗松挂板、铝镁锰板、铝型材、平板玻璃、防腐木地板、瓷砖
工程造价:约200万元人民币
摄影师:吴清山
声明:本文由入驻焦点开放平台的作者撰写,除焦点官方账号外,观点仅代表作者本人,不代表焦点立场。
