蟠龙里建面约100-145㎡3-4房即将开启认购,均价6.5万/㎡
上海搜狐焦点 2024-04-14 16:51:07
用手机看
扫描到手机,新闻随时看
扫一扫,用手机看文章
更加方便分享给朋友
大虹桥主城区,上海蟠龙天地隔壁,蟠龙里项目四批次已过会,入市在即,样板间已经开放!
大虹桥主城区,上海蟠龙天地隔壁,蟠龙里项目四批次已过会,入市在即,样板间已经开放!
项目主推建面约100-145㎡3-4房,联动价6.5万/㎡!
项目为精装交付,中央空调、地暖、新风三大件一应俱全。
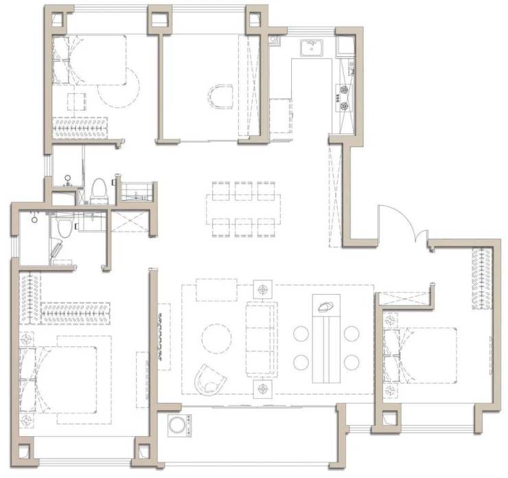
最新户型图如下: (仅供参考,以官方公示为准)
建面约100㎡户型 三房两厅两卫
建面约145㎡户型 四房两厅两卫
蟠龙里总建筑面积50760.36㎡,容积率2.0,绿化率35%,由4幢14-16F小高层住宅围合而成。
项目式现代风格建筑,追求立面造型的整体性,符合虹桥商务区整体城市风貌于细节之间呈现精心雕琢。
项目不仅位于虹桥主城区,更是虹桥主城区中,与虹桥商务区关系更加密切的区域。
项目步行可达17号线,周边还有2号线和13号线延伸线,3条轨交环绕,畅达中心城区!
声明:本文由入驻焦点开放平台的作者撰写,除焦点官方账号外,观点仅代表作者本人,不代表焦点立场。


