大开间,有腔调!今后上海市保障性住房准备这么设计!
上海住房城乡建设管理 2019-02-27 17:00:31
用手机看
扫描到手机,新闻随时看
扫一扫,用手机看文章
更加方便分享给朋友
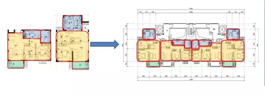
为进一步提升工业化建设水平 上海市住房城乡建设管理委 市规划国土资源局 市房屋管理局发布 《关于进一步提升本市保障性住房 工业化建设水平的通知》 今后 上海市保障性住房准备这么设计 大开间,有腔调! 何为大开间? 大开间是指单套户内的居住空间由两个及两个以上开间组成,且至少两个开间内无竖向承重支撑的
为进一步提升工业化建设水平
上海市住房城乡建设管理委
市规划国土资源局
市房屋管理局发布
《关于进一步提升本市保障性住房
工业化建设水平的通知》
今后
上海市保障性住房准备这么设计
大开间,有腔调!
何为大开间?
大开间是指单套户内的居住空间由两个及两个以上开间组成,且至少两个开间内无竖向承重支撑的空间体系。

目前
本市保障性住房
正全面推进装配式建设发展
在动迁安置房、经济适用房等
毛胚交付的保障性住房中
率先推行“大开间”设计理念
何为有腔调?
都9102年了
保障性住房也有了品质的飞跃
1
鼓励采用装配式轻质内墙隔板等材料,便于二次改造,避免住户自行装修破坏承重结构。
空间改造




2
运用标准化户型,住户随时间的推移和家庭结构的变化,满足住户在不同阶段的居住需求,实现居住空间的灵活可变性。
模块化应用




3
部品部件标准化,能降低现场施工对周边住户的影响,从源头减少装修垃圾排放。
部品部件应用




本通知自2019年1月起施行,2020年在试点项目评估基础上全面推广。
点击阅读原文,查看通知
扫描下方二维码,查看原文件

声明:本文由入驻焦点开放平台的作者撰写,除焦点官方账号外,观点仅代表作者本人,不代表焦点立场。


