华发古美华府预计一季度入市,主推建面约107-145㎡3-4房
上海搜狐焦点 2023-01-16 17:02:48
用手机看
扫描到手机,新闻随时看
扫一扫,用手机看文章
更加方便分享给朋友
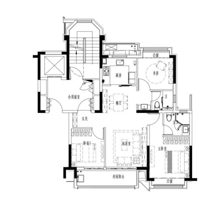
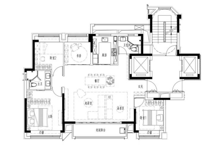
闵行古美全新盘华发古美华府建面约107-145㎡3-4房预计一季度入市联动价8.25万/㎡户型图如下:(过程稿仅供参考,最终以开发商发布为准)建面约107㎡3房2厅2卫建面约107㎡3房2厅2卫建面约145㎡…
声明:本文由入驻焦点开放平台的作者撰写,除焦点官方账号外,观点仅代表作者本人,不代表焦点立场。


