浦东高铁东站——公元2040,全套户型图,附一房一价表
扫描到手机,新闻随时看
扫一扫,用手机看文章
更加方便分享给朋友
祝桥是上海城市总规划“西虹桥、东祝桥”的十字黄金轴东起点。
浦东“十三五”规划,将祝桥提升到与陆家嘴、张江平级的重点发展区域,南拥商飞总装基地,北靠空港保税区,西临上海迪士尼。

在上海“十三五”规划中,浦东产业规划又被重点拓展,新增了祝桥-川沙区域的航空城,高端产业规模集聚,特别是中国商用飞机有限责任公司总装制造中心浦东基地将带动约2000家上下游产业链企业,3年内,陆家嘴、迪士尼、张江、自贸区将为祝桥航空城导入超过50万商业人群,板块的发展不容小觑。
上海市规划和国土资源管理局官网发布《沪通铁路二期专项规划调整》,规划明确了上海东站的选址和规模。位于浦东祝桥,规划10台22线(含正线),规划控制规模约46公顷,超上海站、上海南站,成为浦东排名前列、上海第二大火车站。主要办理沪通、沿江、沪乍杭方向的始发终到车,以浦东版“虹桥枢纽”之势串联起长三角和全国主要城市,更加速“1+6”上海大都市圈的经济发展。
公元2040位于上海市浦东新区祝桥镇,位于浦东新区中部,东接上海东站+浦东国际机场,南拥商飞总装基地,西临迪斯尼乐园,北靠“虹桥—浦东”空港发展黄金轴,雄踞上海外高桥港、浦东空港、洋山深水港“三港三区”产业带的核心区域,是上海建设国际航运中心的腹地和中国大飞机产业的基地。
为避免大客流影响服务质量、提高您的参观体验,仅接受预约参观,感谢您的理解与支持!
交通配套:
紧邻浦东机场(约18KM),驱车10分钟内可至上海绕城高速、迎宾高速和申嘉湖高速等快速道路;地铁2号线延伸段、磁悬浮、地铁21号线(高桥-金桥-张江-迪士尼-祝桥)4条轨道交通线路,并与浦东国际机场实现近距离换乘,
商业配套:
项目自带约1300平方的商业;旁边约5万方家庭式“新世界欢乐城”(招商中);万和丽笙五星酒店,均已达成意向入驻。项目1公里范围内还有规划7.8万方商业综合体。社区我们有1300方的自持商业
教育配套:
幼儿园:百熙幼儿园、东港幼儿园、卫亭路幼儿园、开心幼儿园、春竹双语幼儿园。小学:上海实验学校附属光明学校,上海实验学校附属光明学校东校区,浦东新区祝桥小学。中学:祝桥高级中学,进才中学东校,上海实验学校附属,光明学校等皆环绕周边,满足全年龄段孩子们的教育需求。
医疗配套:
项目旁边就是祝桥镇光明医院(川南奉公路5009号),祝桥区域医疗中心(规划)长海医院东院或者九院(已达成建设意向),上海市浦东医院(惠南镇拱为路2800号)等
旅游景点:
项目,距离超百亩的海天湖公园仅1公里;距离项目10公里范围内,有上海野生动物园、滴水湖、迪士尼乐园等;绕城高速路连接达迪士尼、高炫世界乐园(施工中)、海昌极地乐园(施工中)、冰雪世界(规划中)、中国航海博物馆等世界主题乐园。
公元2040,由国内知名地产开发商金地携手招商、融创三大集团强强联手,共同打造。社区由小高层公寓和叠加别墅组成,定位中高端住宅社区。项目占地约14万方,总建筑面积:约39平方米,容积率1.9,绿化率35%,建筑密度:22.54%,由11栋14F小高层和12栋5F叠加别墅组成,总套数:2133套,其中南面和北面的5幢15F的小高层为自持物业和保障房。另有2700㎡生活馆和1300㎡沿街商铺。一共分3期逐步开发,一期总套数:835套,其中公寓640套、叠加195套。
公元2040采用现代新中式造园技法结合新亚洲建筑风格,外立面通过石材、仿真石漆和立体花纹格栅等元素相结合,底座的干挂石材,体现了社区的高端大气,楼体的真石漆具备了高仿真的石材效果,打造世界审美的现代美学建筑。
公元2040引进国际建筑标准理念,从风向风力、关照角度及市场、湿度、温度、声音分贝等人体感知维度,打造社区360°景观健康家、微气候的定制景观,为业主带来更舒适的居住环境,
小区绿化以苏州园林为蓝本,秉承“巧于因借,精在体宜”之园冶精神,撷“清风明月本无价,近水远山皆有情”之园林意境,以现代建筑语汇筑造现代园林之空间典范,实现现代建筑与古典园林间一种完善结合。
社区内配有2600m²艺术生活馆涵盖泳池、健身会所、图书馆、艺术长廊的低密生态人居样本,社区360°微景观系统,650米漫步道和1000米绿廊跑道、户外阳光办公厅、社区wifi、室外充电插座、老年健身广场、亲子果园、儿童乐园等。
小区内采用类人车分流式管理,确保业主安全,方便业主出行,小区内部是禁止车辆通行的。一期地上车位在商业部分,基本是完全人车分流,整体小区是类人车分流。
项目名称:公元2040
占地:14万㎡
️总建筑面积:约39平㎡
容积率:1.9
建筑密度:22.54%
绿化率:35%
层高:14层
车位比:1:1.2(人车分流)
得房率:77%
建筑风格:现代+上中式风格
物业:招商局物业管理有限公司(国家一级物业管理资质)
物业费:高层3.80元/月·平方米 别墅4.55元/月.平方米
项目性质:70产权小高层住宅
可售套数:640套(11栋14F)
在售面积:
公寓
A1标准户型约86㎡ 三房二厅一卫;
B1标准户型约99㎡ 三房二厅二卫;
B2标准户型约95㎡ 三房二厅一卫;
C 标准户型约117㎡ 四房二厅二卫
叠加
中叠 标准户型约123㎡
下叠 标准户型约136㎡
上叠 标准户型约103㎡
装修标准:
中央空调(日立)、地暖(博世)、美式钢木门、科勒卫浴等
梯户比:一梯两户
交房日期:2019年年底
一房一价表:
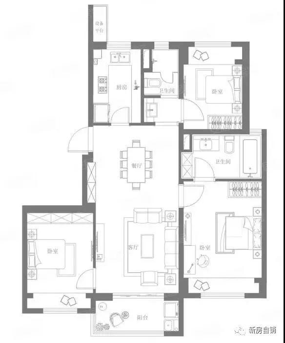
户型图和样板房照片:
86平3房2厅1卫
95平3房2厅2卫
99平3房2厅1卫
117平4房2厅2卫
分享提醒
这么好的东西记得一定要告诉朋友们~
版权说明:本文来源于网络及售楼处推广资料,如涉及版权等问题,请联系小编,我们将在排名前列时间处理。
声明:本文由入驻焦点开放平台的作者撰写,除焦点官方账号外,观点仅代表作者本人,不代表焦点立场。


