拿地时,这样计算地库面积,项目利润尽在掌握!
扫描到手机,新闻随时看
扫一扫,用手机看文章
更加方便分享给朋友
现在,房地产市场激烈竞争,能不能拿到地对每家房企来说都至关重要。拿地阶段除了融资成本和对后市预期的PK之外,强排方案也是重要的制约因素。但由于各家开发商管控要求和力度不同,拿地方案的精细度差异明显。

先来建立一个简单的模型,可售计容面积10万㎡,拿地前可售比为75%,拿地后可售比下降2%(在可售计容面积不变的情况下,不可售面积增多,可售比为73%),会有什么影响呢?
可售比下降2%,可售单方造价增加92.5元/㎡。这意味着什么呢?

▲上图为根据万科年报摘录的历年销售额、销售面积、净利润数值折算。
根据上面这份万科2009年到2015年销售均价及每平米净利润的图表,我们不难发现:可售比下降2%,可售单方增加92.5元/㎡,占标杆公司净利润10%以上!
拿地以后,各类成本指标都可能会发生变化,主要是由于以下三个原因造成的:
❶如地价过高定位调整以后,为提升溢价一些配套用房或配置标准提高,首层增设架空层以提升小区品质。
❷ 由于前期工作不充分,政府相关配套用房面积估算不足:
如配电房一般设置在地下一层而有些城市只能设置在地面,垃圾房或门卫房的指标估计不足,配建幼儿园面积指标估计不足等。
❸ 地下室面积估计不足:
(1)非机动车车位面积漏算:往往认为地上可以消化掉非机动车位,而由于密度指标一般设计会用足,绿化率指标出让文件有下限,往往导致无法在基地内部设置满足规范要求的非机动车停车面积指标,而只能在地下室增设。
(2)地上可停的机动车车位数量:目前多地标准为不超过10%,个别城市规范可以做到20%甚至30%,而在实际过程中由于审批部门或政府领导对各项目期望不同、掌握的尺度也不一样,地上车位是否可以顶着规范上限需沟通。
(3)人防计算规则在变化:国标和地标的不同或者新规和旧规的不一致(如国标常规为10层及以上或埋深超过三米设置满堂人防,而有些城市按照总建筑面积的百分比取值),导致在拿地过程中套用的指标与最终实现指标有差异。
(4)按户配车位的城市:拿地后营销要求户型配比调整,导致车位数量调整。
(5)各地车位、车道规则差异:未注意各地车位、车道尺寸的差异对项目地库指标的影响。
(6)机械套用“单车位指标”数值:没有注意产品类型的差异,仅仅套用单车位面积指标。
值得注意的是,在以上6点中,5、6两点更容易被忽视。如果房企忽视了这两点,很可能会增加没必要的成本,降低利润率。在拿地过程中应该有如何规避这些风险呢?下面进行详细说明。

不同城市有不同的车位尺寸要求
可售比先天就不一致
理论上,单车位指标极限值是一条通道两边停车时,每一跨里面每个车位占用的面积指标,但这一指标没有考虑设备房、疏散通道等所占面积影响,只能算是理论上的指标,设定为N。以按照三车位柱跨、柱宽0.6米为例,单车位面积指标为:(5.3+5.5+5.3)*7.8/6=20.93㎡

由于各地对车位验收的不同要求,各城市单车位指标也各不相同。在上海,车位尺寸除了国标要求的2.4*5.3(实际2.4=1.8+0.3+0.3,5.3=4.8+0.5)之外,车位划线时候0.15米宽的黄线不得被柱子打断,故单跨三车位的尺寸净宽最小值为2.4*3+0.15=7.35m,常规取值为7.4m,进深方向同理。而且上海验收要求车位范围内不应有集水井和排水沟(取靠墙的一边设置排水沟),因此上海的单车位极限值为: (5.45+5.5+5.45+0.2)*8/6=22.13㎡,

假定:按照国标车位尺寸规则,某项目单车位指标N(暂定35),可售比为75%,不可售面积全部为地库,地库造价为2500元/㎡。可以得出以下结论:

在相同的地上规划的情况下,不同城市因为车位尺寸的要求不同,可售比先天就不一致。
机械套用“单车位指标”数值
拿完地做不到
上图是万科的单车位面积指标数值,在实操过程中,它有前提条件:不包括别墅TH私家车库等特殊的地下车库,一般是包含高层的普通车库,而且面积指标是地下室所有面积。
然而,在拿地估算的时候,很多房企往往不论地上产品类型为何种,机械套用万科等标杆房企的单车位指标,导致拿地测算的时候利润率不错,拿完地以后做不到。
对于地下室单车位指标,个人认为有一个相对更准确的口径,就是扣除主楼底部投影面积以后的车库面积,一般数值可以做到27-31辆/㎡。用这个口径有以下几个优点:
1、可以从制度设定导向上鼓励主楼底部南向开间插入车位(即使插入车位了,主楼投影面积仍然不计入地库面积);
2、主楼底部面积可以提示设置非机动车库;
3、主楼底部无法停车以充分利用的区域可以设置储藏室,提升货值(储藏室有售价时)或提升销售速度(储藏室作为赠送面积);
4、剔除主楼楼栋数的影响。如同样的车位数时,地库中有五栋高层主楼和十栋高层主楼时,地库总面积一定是不同的。
因此,单车位指标估算地库面积仅在高层及独立地库时具有一定的参考价值,多层及别墅类地库应抽取标准段进行排布以得出相对准确的可停车位数量(或者抽取标准段排布以修正单车位指标)。

拿地阶段“量长度”
可以得出相对准确的指标
拿地阶段地上各产品类型指标准确度一般相对较高,而一旦涉及到多种产品类型组合,地下室面积指标往往差异较大,而这是造成拿地后可售比变化的罪魁祸首。如何在拿地阶段得出相对较为准确的指标呢?个人设想了一种“量长度”的方式。
主要基于以下前提条件:

楼栋间距不同,各类地库停车效率也不同,上图中楼间距为16.1m和32.4m停车效率较高。以1.2的间距要求(日照满足规范的前提下)反推这两种楼栋间距时地上楼栋高度,可知:

在地上楼栋为4层高度13.4m,和9层高度27m时,楼栋间停车效率较高,在4-9层之间停车效率一定是有所降低的。
拿地方案排布以后,地下室车位数量是确定的,比较精确的做法是对地库进行排布,但如果拿地意愿不够强烈,设计人员一般不会进行详细排布。为提升地库排布的精度,进行一些设想……
扣除主楼以后所形成的可停车方形区域,根据楼栋之间间距数值(短边长度)确定可停车位排数,根据长边长度可以确定每排停车数量L÷7.8*3,车位总数可根据下表直观查出:

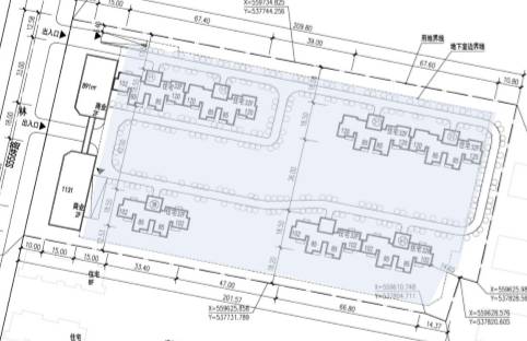
如下图,首先确定退界及地库轮廓范围:

扣除主楼后形成各类长方形范围,结合上表核算各个长方形车位数量,总和即是一层停车时该地块大致可以设置的车位数量。如果车位数不足则需要地下二层停车;如果车位数比所需设置多,减去停车效率较低的区域车位大致可以得出地库轮廓范围。

声明:本文由入驻焦点开放平台的作者撰写,除焦点官方账号外,观点仅代表作者本人,不代表焦点立场。


