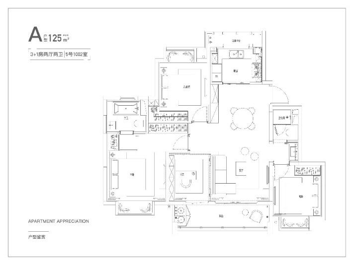
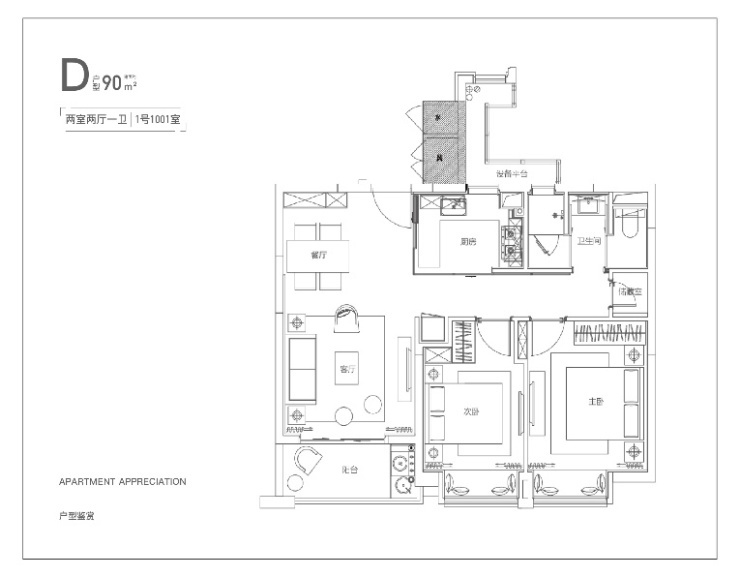
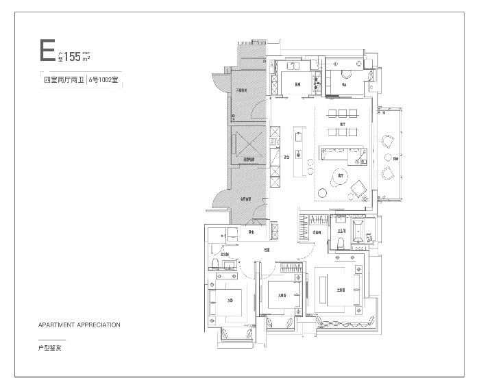
万科红盘来了 TOD未来城市×翡翠系爆款户型=天空之城
焦点上海经纪公司 2018-12-15 11:38:12
用手机看
扫描到手机,新闻随时看
扫一扫,用手机看文章
更加方便分享给朋友
大家好 我是【万科 天空之城】售楼处 潘经理 如果您有意向购买我们这个项目,请联系我,。
自驾客户 请保留好 过路费小票 给您报销路费。我们售楼处全体员工 祝您生活愉快! 工作顺利!
声明:本文由入驻焦点开放平台的作者撰写,除焦点官方账号外,观点仅代表作者本人,不代表焦点立场。


