佘山银湖别墅装修法式古典风格设计
上海松江区域别墅装修 2019-07-03 14:04:37
用手机看
扫描到手机,新闻随时看
扫一扫,用手机看文章
更加方便分享给朋友
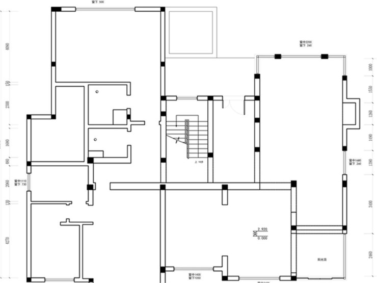
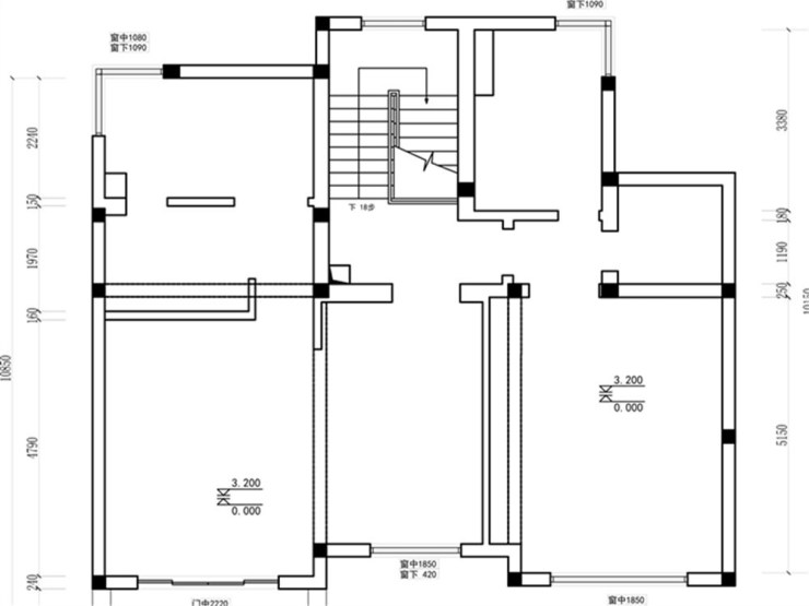
小区:佘山银湖别墅 户型:独栋 面积:约700平 装修风格:法式新古典 设计说明:法式风格建筑讲究点缀在自然中,并不在乎占地面积大小,追求色彩和内在联系,让人感到有很大的活动空间。不过,有时也有意呈现建筑与周围环境的冲突。因此,法式建筑往往不求简单的协调,而是崇尚冲突之美。在设计上讲求心灵的自然回归
小区:佘山银湖别墅
户型:独栋
面积:约700平
装修风格:法式新古典
设计说明:法式风格建筑讲究点缀在自然中,并不在乎占地面积大小,追求色彩和内在联系,让人感到有很大的活动空间。不过,有时也有意呈现建筑与周围环境的冲突。因此,法式建筑往往不求简单的协调,而是崇尚冲突之美。在设计上讲求心灵的自然回归感,给人一种扑面而来的浓郁气息。开放式的空间结构、随处可见的花卉和绿色植物、雕刻精细的家具……所有的一切从整体上营造出一种田园之气。不论是床头台灯图案中娇艳的花朵,抑或是窗前的一把微微晃动的摇椅,在任何一个角落,都能体会到主人悠然自得的生活和阳光般明媚的心情。、布局上突出轴线的对称,恢宏的气势,豪华舒适的居住空间。
装修咨询设计师预约电话:15800615719 微信在线沟通:zijiegg
声明:本文由入驻焦点开放平台的作者撰写,除焦点官方账号外,观点仅代表作者本人,不代表焦点立场。
