《大宁金茂府》精装城市叠墅,预计均价13万/m²,仅78席!网红盘将取证!
扫描到手机,新闻随时看
扫一扫,用手机看文章
更加方便分享给朋友
“黄山归来不看岳,金茂归来不看府”,这是地产界广为流传的一句话,也被业内老炮戏称为“金茂现象”。
2009年,万众瞩目的广渠路15号地王被中国金茂拿下,楼面价约1.5万元/平方米,排名前列座金茂府就此诞生。
2011年,北京广渠路金茂府入市,并连续两年稳居北京住宅的年度“销冠”、20个月销售额达到100亿的业绩至今无人能破。
此后金茂府开挂之势不可阻挡!
从抢售一空的望京金茂府,再到红得发紫的北京金茂府,亦庄金茂府、滨江金茂府……府系的星光大道可谓走得光芒四溢。
这几年的上海楼市
大宁金茂府可以说是标杆一样的存在
2014年
101亿拿下该地块楼板价4.76万元/㎡
2015年4月18日
大宁金茂府首开,282套清盘,均价7万元/㎡
2015年7月
大宁金茂府第二次开盘
2015年9月
大宁金茂府第三次开盘
……
2018年4月21日
大宁金茂府三期,382套清盘,均价9.4万元/㎡(相对来说真心不贵)
而此次大宁金茂府待售的叠墅产品仅78套
户型面积为:约220-265平叠加
所有户型均为4房2厨设计,
其中3间卧室设计为套房,
层高3.3m,独立电梯入户。预计均价130000/m²


静安大宁
— 完备的高端商业 —
自2015年闸北静安撤二建一后,大宁板块经历了一系列脱胎换骨般的华丽蜕变。大宁国际中心广场、大宁音乐广场、协信中心,还有在建中的大宁久光百货,可满足购物、餐饮、娱乐、健身、亲子等全方位生活需求。新静安体育中心、上海马戏城让生活丰富多彩。

— 优质生态环境 —
板块内68万方的生态公园——大宁灵石公园,相当于100个标准足球场大小,同时也是以慢跑为主题的生态公园。每年的三、四月份还可以欣赏郁金香花展。

15万方的闸北公园,则是品茶、学茶的上佳场所。
闲暇之余去公园跑跑步锻炼一下身体,去钓钓鱼放松一下神经,也可以带孩子去游乐场增加感情。
— 快捷出行交通 —

大宁金茂府距离地铁1号线上海马戏城站和汶水路站的直线距离均不超过1公里,自驾可以上汶水路中环高架和南北高架,便捷到达人民广场、新天地、陆家嘴、静安寺等大商圈。
— 全年龄段教育 —
国际化的生活离不开国际化的教育。大宁板块拥有大宁国际幼儿园、大宁国际小学、风华初级中学、上海大学等13所各级学府,拥有全年龄段教育资源。

值得一提的是,根据上海发布2018静安区公办小学招生划片范围显示,大宁金茂府一期就位于大宁国际小学招生地段范围内。

科技人居
大宁金茂府秉承“房子是用来住的”的筑家理念,从“温度、湿度、空气、阳光、声音、水”六大基本生命元素出发,同步欧洲12大科技系统,包括循环地源热泵系统、毛细管网辐射系统、24小时新风除霾系统等,让全家远离春潮、秋燥、酷暑、寒冬,不仅住得舒适,更住得健康。

金茂府的生活
不只住房的品质,大宁金茂府对社区绿化的打造也做到精致。2.5万方中央绿地,由著名的景观设计公司,还原的梦幻唯美花园生活。绿植环抱,仿佛身处天然氧吧,时刻使您心旷神怡。


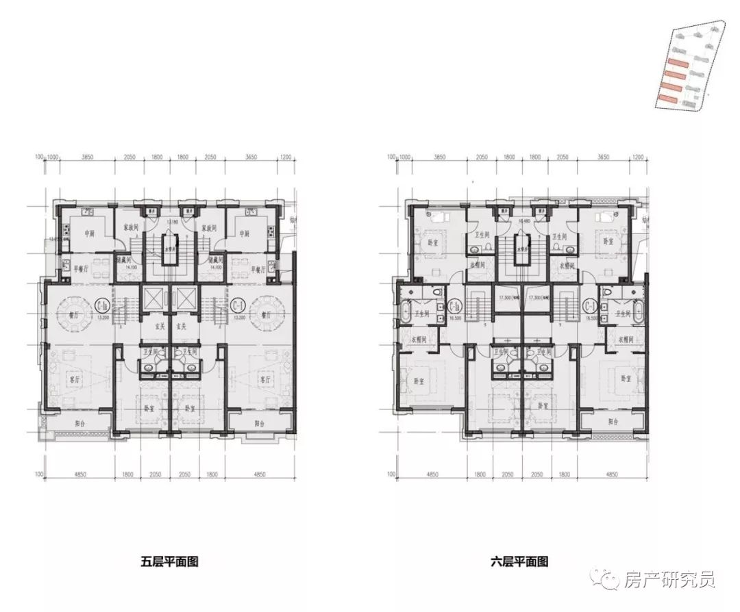
大宁金茂府的高层公寓产品已经全部售罄了,即将推出的城市叠加,约222-268㎡的面积段,不仅装修交付,更有让人赞不绝口的12大科技系统,家家独立双入户,真正的私家电梯,互相之间没有干扰,私密性强。
全球先进室内设计大师梁志天,为金茂府亲自操刀打造BV、香奈儿和宾利风格三款高级定制样板间。
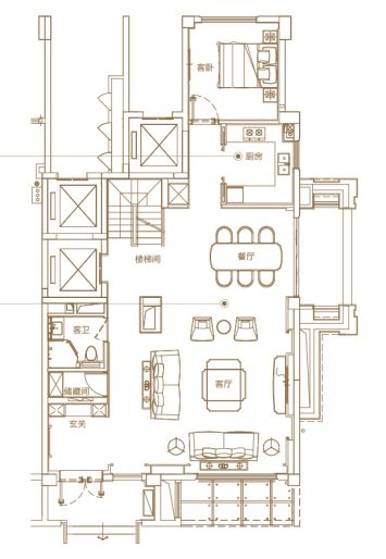
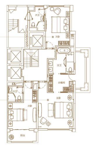
上叠、中叠,下叠均为四房两厅三套房的舒适户型。以这套19号下叠为例,先来看一下户型图。
约224㎡4房2厅4卫
(不包括地下室和花园部分)

家门口的风景

地下室

设有采光井的地下室,不论高度还是采光,都丝毫没有普通意义上地下室的压抑感,24小时新风系统和毛细管网系统,大大降低了黄梅天的潮湿情况。
— 首层 —

超大采光面的玻璃窗
让家里的阳光更加充裕
也可以直面花园美景


厨房临近餐厅
动线流畅、便捷
U形操作台,更多操作空间

上下分隔客卧与主人层
充分保障主人起居的私密性

— 二层 —

三间全套房


南向主卧套房
独立步入式衣帽间和卫生间

次卧套房
配有南向观景阳台
采光充足




( 文章来源于网络具体以销售中心为准 )

详情咨询
↓可扫描二维码进入↓
一对一沟通
您也可点击左下角阅读原文
进入官方预约看房通道
声明:本文由入驻焦点开放平台的作者撰写,除焦点官方账号外,观点仅代表作者本人,不代表焦点立场。


