保利熙悦三期全套一房一价表
扫描到手机,新闻随时看
扫一扫,用手机看文章
更加方便分享给朋友
今日位于宝山区南大板块的保利熙悦三期开始公开认筹


认筹时间:3月8日-3月14日
认筹金:20万元
认筹所需资料:身份证,户口本,结婚证。
保利熙悦三期是项目的收官之作,开发商拿出了剩下的731套可售房源。
之所以有如此底气一次性开出那么多房源主要是因为2017年底同为南大板块的招商中环华府最后一期251套房源被427组客户追逐。

摇号当天,摇到300号以后的客户直接回家了,实在没有给他们选到房的机会。
所以保利熙悦最后一期开700多套房源应该也是意在满足想买南大客户的愿望。

此次开盘房源分布在1#、2#、3#、11#、12#、13#这6幢楼,位置都不错,因为项目西、南两侧都是已建好的生态绿地。

户型面积为94平米3房-123平米4房,户型面积控制的较好,很适合改善型客户,主力总价480—600万左右。
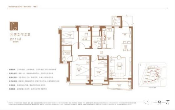
主力户型图
98平米3房

106平米3房

117平米4房

三期均价51000元/平米,精装交付。
全套价目表:





这样的开盘均价是否便宜?
近期上海中外环间新项目价格对比

同是中外环间的项目,保利熙悦的价格比融创玫瑰公馆真是便宜不少。
理论上一个新盘售价是否合理,
要参考同区域内标杆小区的二手房成交价,
所以我们来看一下两个同区域真实成交案例。

真实成交案例

虽然两个小区的周边环境成熟度更高一些,但加上二手房税费等额外费用,保利熙悦的价格性价比还是很高的,另外保利新房的品质也会更好。
新房小区的售价,
未来是否具备升值空间,
得要参考区域土地市场的情况。

近阶段北上海的土地楼板成本已经预示着未来郊环线以外的住宅售价整体达到了4W+,外环线内个别项目的楼板价已破5W,中外环间的保利熙悦均价仅5.1W,其升值潜力真的很有想象空间。
综上所述,保利熙悦作为北上海中环旁的刚改上车盘来讲,不但性价比很高,加之此次开盘量巨大,“买得到”也成为其一个很大得优势。
声明:本文由入驻焦点开放平台的作者撰写,除焦点官方账号外,观点仅代表作者本人,不代表焦点立场。


