上海外滩金融中心 / Foster + Partners、Heatherwick studio
扫描到手机,新闻随时看
扫一扫,用手机看文章
更加方便分享给朋友
上海外滩金融中心是一个大型建筑综合体项目,由Foster + Partners及Heatherwick Studio事务所合作完成,该项目旨在活跃外滩的生活氛围。该建筑综合体坐立于码头的突出位置,成为街道尽头的标志性节点。420,000平方米的总体规划融入丰富的步行道路系统,将城市金融中心与老城区密切相连。场地南部坐落着两栋180米高的建筑,受此影响,项目中的建筑高低前后错落,展现出和谐的韵律感,并与其周围的19世纪标志性建筑相呼应。项目的核心内容为复星基金会的艺术及文化中心,拥有展览、集会、表演等多种功能,其灵感来源于传统中式剧院。
点击下方观看视频,click to watch the video
The Bund Finance Centre – a major new mixed-use development jointly designed by Foster + Partners and Heatherwick Studio – is set to revitalise Shanghai’s waterfront. Occupying a prominent site on the Bund, the buildings define the ‘end point’ to Shanghai’s most famous street. The 420,000- square metre masterplan is highly permeable for pedestrians, with the design conceived as a point of connection between the old town and the new financial district. Inspired by this urban context, two 180-metre landmark towers are placed in the south of the site, while the buildings facing the waterfront are staggered in height and relate in scale and rhythm to the grand nineteenth-century landmarks along the Bund. At the heart of the scheme is a flexible arts and cultural centre, home to the Fosun Foundation, which combines exhibition and events halls with a performance venue, inspired by the open stages of traditional Chinese theatres.
鸟瞰外滩金融中心,aerial view

Foster + Partners的负责人Senior Executive Partner说道:“外滩金融中心旨在建立老城区与金融中心的密切联系。该项目是一项有趣的挑战,我们需要在建立新旧之间联系的同时,回应外滩景观和历史街区景色。”
Heatherwick Studio创始人Thomas Heatherwick说道:“这个在老城码头打造全新地标的项目,对我们来说是一项少有的体验。坐落于420,000平方米的基地上,该项目赋予我们一种使命感。它激励我们努力使用创新性手法来使其与古老城市文化相融合,并为千万民众提供开放怡人的公共活动场所。考虑到建筑周边的环境,我们设计了一系列简单的办公室,商业及文化建筑。并采用高性能玻璃幕墙与手工雕刻石砖铺面的建筑建筑框架相结合。这些结构。这些结构围绕着全新的公共空间,展开了与外滩大厦的历史性对话。”
创造亲密的市民广场,enclose a intimate public square

Gerard Evenden, Head of Studio and Senior Executive Partner, Foster + Partners commented: “The Bund Finance Centre creates a pivotal connection between the old town and the new financial district. Developing the massing strategy for the buildings was an interesting challenge, in terms of relating to the context of old and new architecture, reflecting the scale of the waterfront and the character of the historic quarters.” Thomas Heatherwick, Founder of Heatherwick Studio, said: “The opportunity to make something new in this prominent location that had formerly been the river gateway to Shanghai’s Old Town was extraordinary. With a project that would create 420,000 square metres of space, we felt a great duty to look for fresh ways to connect with China’s amazing built heritage and make a meaningful public place for thousands of people to work and come together. Influenced by the materiality and scale of the existing historic buildings along the Bund we have built a series of simple office, shopping and cultural buildings that combine high performance glazing systems with hand carved stone building frames. These structures in turn surround new public spaces and speak to the heritage of the historical Bund buildings.”

420,000平方米的总体规划中,包括8栋建筑,拥有高品质办公室,精品酒店,文化中心和各种品牌的奢侈品店。零售商店与精品店,概念商品店及国际品牌商店,奢侈品店上下分层,和它们环绕公共广场形成奢华的购物体验。建筑外立面的手工细节让其展现如珠宝般的品质。各建筑体量由质感丰富的花岗岩装饰,随着建筑高度的增加,花岗岩变得愈加轻巧,给人以基础坚实顶部轻盈的视觉感受。
The 420,000-square-metre development of eight buildings combines premium offices with a boutique hotel, a cultural centre and a wide variety of luxury retail spaces, all arranged around a landscaped public plaza. The retail spaces are vertically layered with boutiques, concept stores for international brands, a luxury shopping mall and restaurants. A palette of crafted stone and bronze details gives the buildings a jewel-like quality. The edges of each volume are made of richly textured, hand-crafted granite and become slimmer as they rise, giving the impression of solidity at the base and transparency at the top.
透视图,perspectives


建筑融入城市生活,architecture with the urban life

项目所营造的精品商店和餐厅,the retail stores and restaurants


该项目的社会性焦点聚集在文化中心的展现中,该中心旨在为国际艺术及文化交流,品牌展示,新品发布会及各种发布会提供优质场所。建筑被移动的装饰外围环绕着,它配合建筑不断变化的用途,遮挡着展示舞台,围合出对望浦东的好视野。该立面装饰共三层,包含675根独立的镁合金柱型单体,形式参考传统中式新娘头冠装饰。该柱型装饰长度从2米到16米不等,且各自独立移动。随着各个层面的旋转交叠,建筑外貌展现出不同的透明度和视觉效果。该外立面为事务所与同济大学共同设计完成。
The social focus of the scheme is the cultural centre, conceived as a platform for international arts and cultural exchange, as well as a place for brand events, product launches and corporate functions. The building is encircled by a moving veil, which adapts to the changing use of the building and reveals the stage on the balcony and views towards Pudong. Developed in collaboration with local engineers Tongji University, the façade is a veil organised along three tracks and made up of layers of 675 individual magnesium alloy ‘tassels’ – a reference to the traditional Chinese bridal headdress. The tassels range in length from around 2 metres to 16 metres so that as each track independently moves, the veil rotates with the tassels overlapping and producing different visual effects and levels of opacity.
舞动的外立面,the moving veil
基金会外立面,the elevation

基金会外围设计分解图,the layers of the veil

文化中心的特色外围装饰设计,the moving veil around the cultural center

独特的外立面设计参考传统中式新娘头冠装饰,the veil is inspired by the traditional Chinese bridal headdress


随着各个层面的旋转交叠,建筑外貌展现出不同的透明度和视觉效果,the veil rotates with the tassels overlapping and producing different visual effects and levels of opacity

“文化中心是手工艺与科技的优质混合产物。它的设计灵感来自于传统中式编织工艺,并融入了较高端的科学技术来防范地震,台风和恶劣天气。它独特的形态为来访者带去非比寻常的观赏体验,而其绚丽的照明系统和移动外围装饰为城市生活带来缤纷色彩,”Evenden补充道。
“The cultural centre is an optimum blend of craft and technology. It is inspired by traditional Chinese weaving, while incorporating the latest cutting-edge technology that helps withstand earthquakes, typhoons and severe weather. Its unique form provides a memorable and extraordinary experience for visitors, while the illuminated stage and the motion of the moving veil creates a unique backdrop to the theatre of city life,” added Evenden.
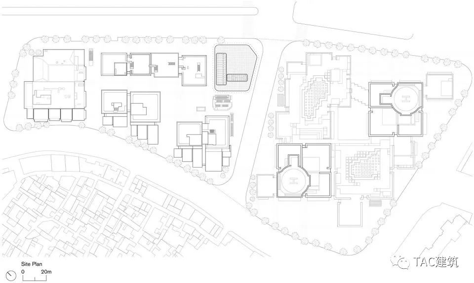
场地图,site plan

北部建筑群一层平面图,north plot level 01

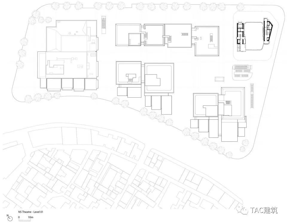
剧院一层平面图,theatre plan level 01

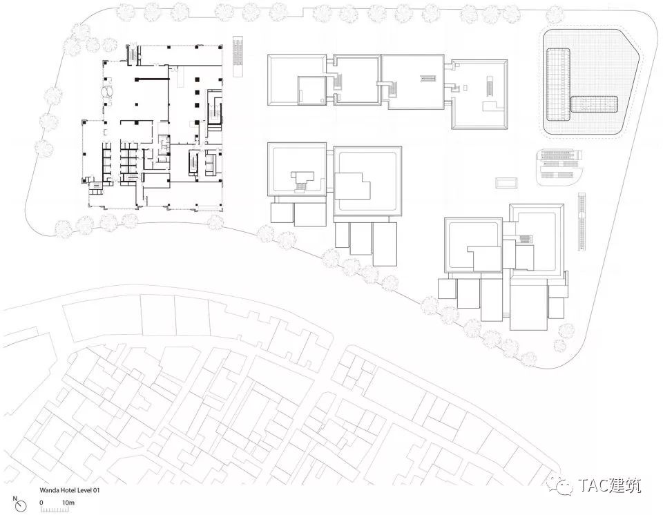
酒店一层平面图,hotel plan level 01

剖面图,section

塔楼立面,tower elevation


北部建筑立面图,north plot elevation



文化中心立面,the cultural center elevation


文化中心外围装饰细部详图,the details of the veil

声明:本文由入驻焦点开放平台的作者撰写,除焦点官方账号外,观点仅代表作者本人,不代表焦点立场。
