奉贤殡仪馆将搬迁至柘林法华村,新建工程方案公示!
微奉贤 2018-08-08 21:06:09
用手机看
扫描到手机,新闻随时看
扫一扫,用手机看文章
更加方便分享给朋友
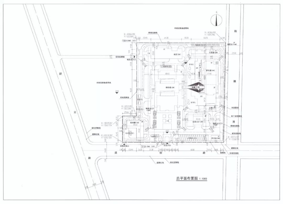
今天小编在奉贤规划土地网上看到 奉贤殡仪馆将迁建至柘林镇法华村 新建工程方案出炉公示 (点击图片查看高清图) 该项目为上海市奉贤区殡仪馆新建工程,该项目位于奉贤区柘林镇法华村,临近规划迎立路,介于平庄西路和北横路之间,东临船潮港。 (点击图片查看高清图) 总用地面积:39975.86平方米,总建筑面
今天小编在奉贤规划土地网上看到
奉贤殡仪馆将迁建至柘林镇法华村
新建工程方案出炉公示

(点击图片查看高清图)
该项目为上海市奉贤区殡仪馆新建工程,该项目位于奉贤区柘林镇法华村,临近规划迎立路,介于平庄西路和北横路之间,东临船潮港。

(点击图片查看高清图)
总用地面积:39975.86平方米,总建筑面积40690.00平方米,其中地上建筑面积:16090.00平方米。计容面积:15990.00平方米,地下建筑面积:24600.00平方米。

建筑单体总共为15个,主要建筑为:综合楼,业务大厅,悼念楼,焚化楼,地宫,守灵堂。
来源 /奉贤土地规划局
整理 / 微奉贤
法律支持 / 顾亮亮 律师(上海市新闵律师事务所 )
声明:本文由入驻焦点开放平台的作者撰写,除焦点官方账号外,观点仅代表作者本人,不代表焦点立场。


