上海肖塘投资发展有限公司摘得肖塘城中村改造02-04地块
奉贤交能集团 2018-08-28 17:14:30
用手机看
扫描到手机,新闻随时看
扫一扫,用手机看文章
更加方便分享给朋友
8月22日,集团下属上海肖塘投资发展有限公司以21.39亿元摘得上海市奉贤区南桥新城18单元02-04地块,楼面价20298元/平方米,这是本年度奉贤区排名前列块住宅出让土地。 该地块四至范围:东至南横泾、南至北虹新村、西至沪杭公路、北至大叶公路;建设用地面积42155.9平方米;规划建筑面积:1053

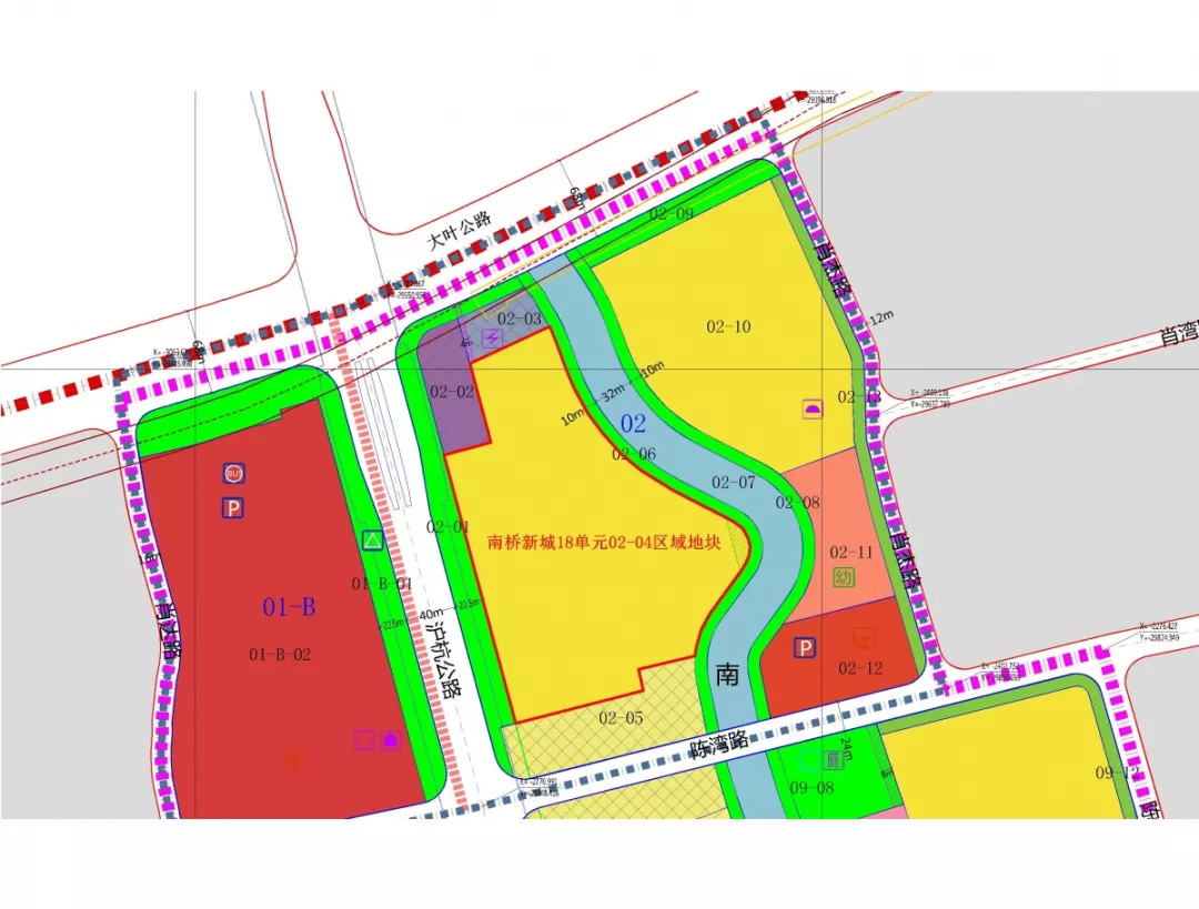
8月22日,集团下属上海肖塘投资发展有限公司以21.39亿元摘得上海市奉贤区南桥新城18单元02-04地块,楼面价20298元/平方米,这是本年度奉贤区排名前列块住宅出让土地。

该地块四至范围:东至南横泾、南至北虹新村、西至沪杭公路、北至大叶公路;建设用地面积42155.9平方米;规划建筑面积:105390平方米;容积率:2.5;出让年限:70年。地块东靠南横泾港,西临轨交五号线肖塘站,是肖塘城中村改造未来发展的核心腹地。今后将按照建设高品质住宅的理念进行设计,结合南横泾沿江景观绿化带及居住带规划,打造绿色宜居的住宅环境。
在取得02-04地块后,公司将有条不紊地加快肖塘城中村改造工程,早日实现美丽肖塘的华丽蜕变,努力将“肖塘新城”打造成奉贤北门户的一张新名片。

交能
声明:本文由入驻焦点开放平台的作者撰写,除焦点官方账号外,观点仅代表作者本人,不代表焦点立场。


